pic

Тема проекта: «Насосная станция системы технического водоснабжения ТЭС и АЭС». Техническое водоснабжение играет ключевую роль в обеспечении работы тепловых электростанций (ТЭС). Подача и циркуляция воды необходимы для охлаждения конденсаторов паровых турбин, восполнения потерь в системе и поддержания бесперебойного рабочего процесса. Правильное проектирование насосных станций является важным этапом в создании эффективной системы водоснабжения, что напрямую влияет на надёжность и экономичность работы ТЭС. Актуальность работы. Современные тепловые электростанции требуют рационального использования технической воды с минимальными потерями и эффективным охлаждением оборудования. Насосная станция должна обеспечивать необходимую подачу воды с заданным напором, соответствуя графику водопотребления и условиям эксплуатации. Оптимальный выбор насосов, трубопроводов и вспомогательного оборудования позволяет снизить затраты на строительство и эксплуатацию системы технического водоснабжения.

pic

1.Введение 2. Определение потребности электростанции в технической воде и выбор схемы технического водоснабжения 2.1 Расчёт потребности ТЭС в технической воде. 2.2 График водопотребления по месяцам.

pic

2.3 Обоснование и выбор схемы технического водоснабжения. 3. Состав и компоновка сооружений системы технического водоснабжения 3.1 Схема системы технического водоснабжения с градирней и прудом-охладителем. 3.2 Размещение сооружений насосной станции на плане местности (Вариант №18).

pic

4. Определение расчётных напоров и подач насосов и выбор числа насосных агрегатов 4.1 Расчёт напора насосов (всасывающая и напорная стороны). 4.2 Определение необходимой подачи насосов. 4.3 Обоснование выбора количества насосных агрегатов.

pic

5. Выбор насосов и приводных электродвигателей 5.1 Технические характеристики насосов и электродвигателей. 5.2 Обоснование выбора насосного оборудования.

pic

6. Проектирование всасывающих и напорных трубопроводов 6.1 Определение диаметров трубопроводов и потерь напора. 6.2 Гидравлический расчёт всасывающих и напорных трубопроводов. 6.3 Выбор материала и характеристик труб.

7. Составление характеристик совместной работы насосов и трубопроводов 7.1 Построение совместной характеристики насосов и сети. 7.2 Анализ работы насосной станции при различных режимах водопотребления.

pic

8. Подбор вспомогательного оборудования 8.1 Выбор арматуры, контрольно-измерительных приборов (КИП). 8.2 Обоснование выбора оборудования для автоматизации и защиты насосной станции

9. Конструктивно-компоновочные решения здания насосной станции и водозаборного сооружения 9.1 План и продольный разрез здания насосной станции. 9.2 Конструктивные решения для насосного оборудования и вспомогательных помещений. 9.3 Варианты компоновки водозаборного сооружения. 9.4 Определение высотного положения основных насосных агрегатов 9.5 Определение основных размеров зданий насосных станций 9.5.1 Определение высоты подземной части здания станции 9.5.2 Наземная часть здания станции 9.6 Проектирование водозаборного сооружения

pic

11. Заключение Основные выводы по проекту. Технико-экономическая оценка предложенного решения. 12. Список использованных источников

pic

Чертёж А1 - План здания насосной станции

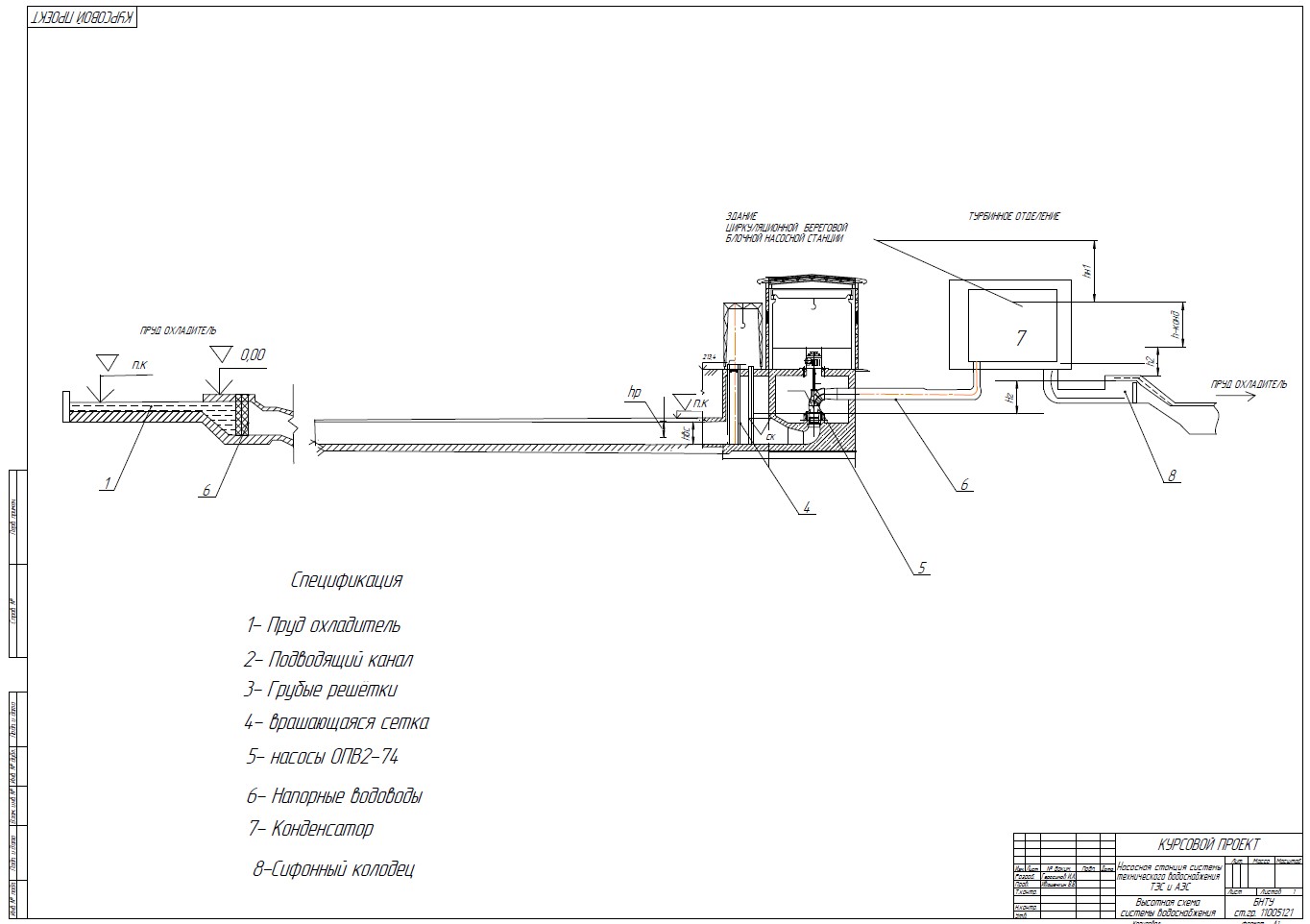
pic

Чертёж А1 - Высотная схема системы водоснабжения

pic